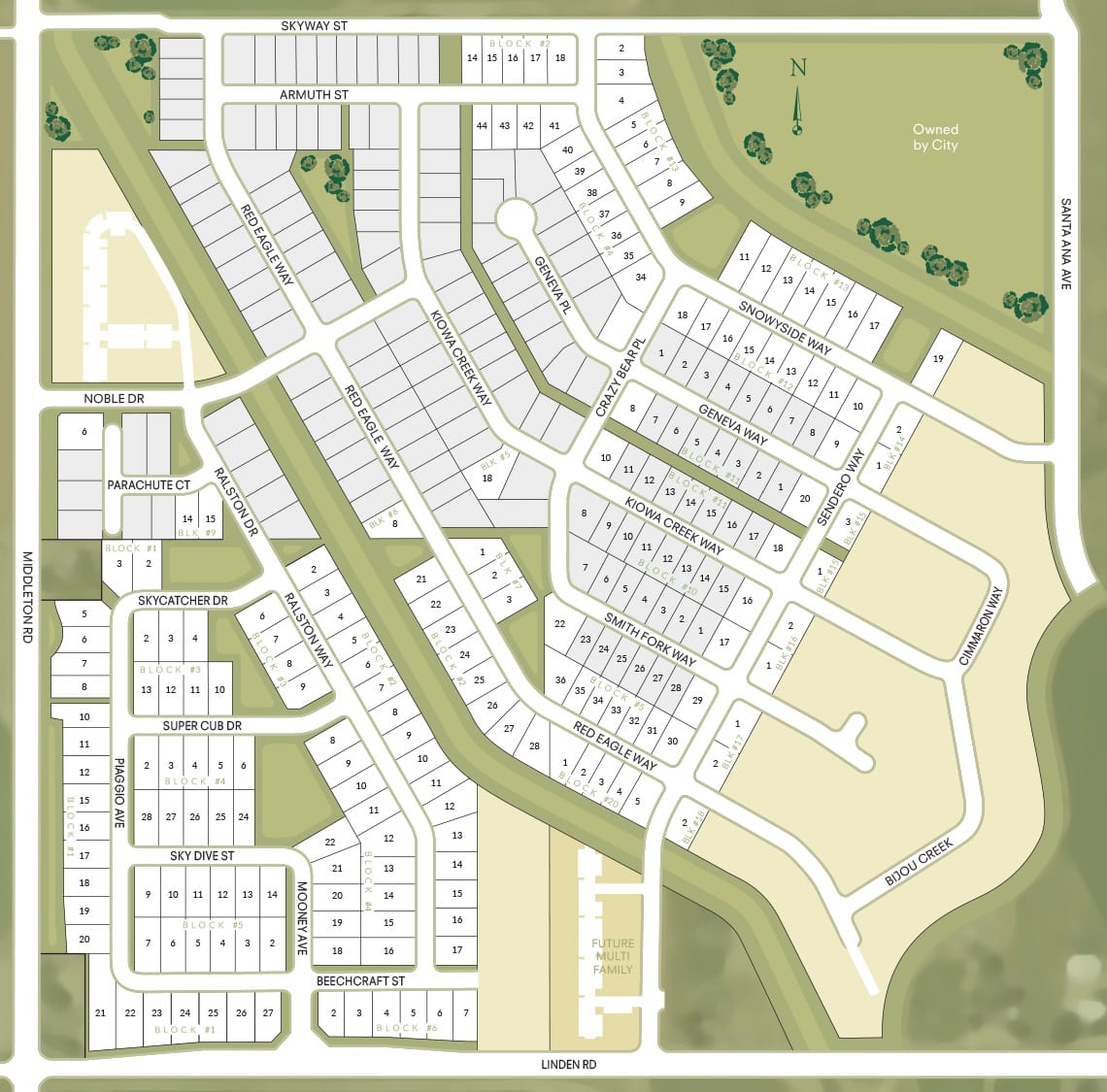
Interactive Site Plan for Mason Creek
Return to Mason Creek
Mason Creek - Block
1 , Lot
2
Lot Information
| Availability |
Sold
|
| Block |
1
|
| Lot Number |
2
|
Topaz
| Model Name | Topaz |
| Bedrooms | 4 - 5 |
| Bathrooms |
3.5
|
| Sq Ft | 3,064 |
| Garage | 3 |
Mason Creek - Block
1 , Lot
3
Lot Information
| Availability |
Sold
|
| Block |
1
|
| Lot Number |
3
|
Amethyst
| Model Name | Amethyst |
| Bedrooms | 3 - 5 |
| Bathrooms |
2.5 - 3
|
| Sq Ft | 2,270 |
| Garage | 2 |
Mason Creek - Block
1 , Lot
5
Lot Information
| Availability |
Sold
|
| Block |
1
|
| Lot Number |
5
|
Garnet
| Model Name | Garnet |
| Bedrooms | 4 - 6 |
| Bathrooms |
2.5 - 3
|
| Sq Ft | 2,807 |
| Garage | 2 |
Mason Creek - Block
1 , Lot
6
Lot Information
| Availability |
Sold
|
| Block |
1
|
| Lot Number |
6
|
Mason Creek - Block
1 , Lot
7
Lot Information
| Availability |
Sold
|
| Block |
1
|
| Lot Number |
7
|
Mason Creek - Block
1 , Lot
8
Lot Information
| Availability |
Sold
|
| Block |
1
|
| Lot Number |
8
|
Alturas
| Model Name | Alturas |
| Bedrooms | 3 |
| Bathrooms |
2
|
| Sq Ft | 1,446 |
| Garage | 2 |
Alturas
| Model Name | Alturas |
| Bedrooms | 3 |
| Bathrooms |
2
|
| Sq Ft | 1,446 |
| Garage | 2 |
| Address | 19455 Snowyside Way |
Alturas
| Model Name | Alturas |
| Bedrooms | 3 |
| Bathrooms |
2
|
| Sq Ft | 1,446 |
| Garage | 2 |
| Address | 19375 Snowyside Way |
Mason Creek - Block
1 , Lot
10
Lot Information
| Availability |
Sold
|
| Block |
1
|
| Lot Number |
10
|
Brooke
| Model Name | Brooke |
| Bedrooms | 3 - 5 |
| Bathrooms |
2 - 3
|
| Sq Ft | 2,286 |
| Garage | 2 |
Mason Creek - Block
1 , Lot
11
Lot Information
| Availability |
Sold
|
| Block |
1
|
| Lot Number |
11
|
Mason Creek - Block
1 , Lot
12
Lot Information
| Availability |
Sold
|
| Block |
1
|
| Lot Number |
12
|
Crestwood
| Model Name | Crestwood |
| Bedrooms | 3 - 4 |
| Bathrooms |
2
|
| Sq Ft | 2,009 |
| Garage | 2 |
Mason Creek - Block
1 , Lot
15
Lot Information
| Availability |
Sold
|
| Block |
1
|
| Lot Number |
15
|
Amethyst
| Model Name | Amethyst |
| Bedrooms | 3 - 5 |
| Bathrooms |
2.5 - 3
|
| Sq Ft | 2,270 |
| Garage | 2 |
Mason Creek - Block
1 , Lot
16
Lot Information
| Availability |
Sold
|
| Block |
1
|
| Lot Number |
16
|
Brooke
| Model Name | Brooke |
| Bedrooms | 3 - 5 |
| Bathrooms |
2 - 3
|
| Sq Ft | 2,286 |
| Garage | 2 |
Mason Creek - Block
1 , Lot
17
Lot Information
| Availability |
Sold
|
| Block |
1
|
| Lot Number |
17
|
Birch
| Model Name | Birch |
| Bedrooms | 3 |
| Bathrooms |
2
|
| Sq Ft | 1,620 |
| Garage | 2 |
Mason Creek - Block
1 , Lot
18
Lot Information
| Availability |
Sold
|
| Block |
1
|
| Lot Number |
18
|
Mason Creek - Block
1 , Lot
19
Lot Information
| Availability |
Sold
|
| Block |
1
|
| Lot Number |
19
|
Spruce
| Model Name | Spruce |
| Bedrooms | 4 - 7 |
| Bathrooms |
2.5 - 4
|
| Sq Ft | 3,065 |
| Garage | 2 |
Mason Creek - Block
1 , Lot
20
Lot Information
| Availability |
Sold
|
| Block |
1
|
| Lot Number |
20
|
Jade
| Model Name | Jade |
| Bedrooms | 3 - 4 |
| Bathrooms |
2.5 - 3.5
|
| Sq Ft | 2,737 |
| Garage | 3 |
Mason Creek - Block
1 , Lot
21
Lot Information
| Availability |
Available
|
| Block |
1
|
| Lot Number |
21
|
Mason Creek - Block
1 , Lot
22
Lot Information
| Availability |
Sold
|
| Block |
1
|
| Lot Number |
22
|
Alturas
| Model Name | Alturas |
| Bedrooms | 3 |
| Bathrooms |
2
|
| Sq Ft | 1,446 |
| Garage | 2 |
Alturas
| Model Name | Alturas |
| Bedrooms | 3 |
| Bathrooms |
2
|
| Sq Ft | 1,446 |
| Garage | 2 |
| Address | 19455 Snowyside Way |
Alturas
| Model Name | Alturas |
| Bedrooms | 3 |
| Bathrooms |
2
|
| Sq Ft | 1,446 |
| Garage | 2 |
| Address | 19375 Snowyside Way |
Mason Creek - Block
1 , Lot
23
Lot Information
| Availability |
Sold
|
| Block |
1
|
| Lot Number |
23
|
Birch
| Model Name | Birch |
| Bedrooms | 3 |
| Bathrooms |
2
|
| Sq Ft | 1,620 |
| Garage | 2 |
Mason Creek - Block
1 , Lot
24
Lot Information
| Availability |
Sold
|
| Block |
1
|
| Lot Number |
24
|
Yosemite
| Model Name | Yosemite |
| Bedrooms | 4 - 7 |
| Bathrooms |
3.5 - 4
|
| Sq Ft | 3,308 |
| Garage | 2 |
Yosemite
| Model Name | Yosemite |
| Bedrooms | 4 |
| Bathrooms |
3
|
| Sq Ft | 3,259 |
| Garage | 2 |
| Address | 10768 Armuth St |
Mason Creek - Block
1 , Lot
25
Lot Information
| Availability |
Sold
|
| Block |
1
|
| Lot Number |
25
|
Jade
| Model Name | Jade |
| Bedrooms | 3 - 4 |
| Bathrooms |
2.5 - 3.5
|
| Sq Ft | 2,737 |
| Garage | 3 |
Mason Creek - Block
1 , Lot
26
Lot Information
| Availability |
Sold
|
| Block |
1
|
| Lot Number |
26
|
Topaz
| Model Name | Topaz |
| Bedrooms | 4 - 5 |
| Bathrooms |
3.5
|
| Sq Ft | 3,064 |
| Garage | 3 |
Mason Creek - Block
1 , Lot
27
Lot Information
| Availability |
Sold
|
| Block |
1
|
| Lot Number |
27
|
Brooke
| Model Name | Brooke |
| Bedrooms | 3 - 5 |
| Bathrooms |
2 - 3
|
| Sq Ft | 2,286 |
| Garage | 2 |
Mason Creek - Block
10 , Lot
16
Lot Information
| Availability |
Sold
|
| Block |
10
|
| Lot Number |
16
|
Crestwood
| Model Name | Crestwood |
| Bedrooms | 3 - 4 |
| Bathrooms |
2
|
| Sq Ft | 2,009 |
| Garage | 2 |
Mason Creek - Block
10 , Lot
17
Lot Information
| Availability |
Sold
|
| Block |
10
|
| Lot Number |
17
|
Alturas
| Model Name | Alturas |
| Bedrooms | 3 |
| Bathrooms |
2
|
| Sq Ft | 1,446 |
| Garage | 2 |
Alturas
| Model Name | Alturas |
| Bedrooms | 3 |
| Bathrooms |
2
|
| Sq Ft | 1,446 |
| Garage | 2 |
| Address | 19455 Snowyside Way |
Alturas
| Model Name | Alturas |
| Bedrooms | 3 |
| Bathrooms |
2
|
| Sq Ft | 1,446 |
| Garage | 2 |
| Address | 19375 Snowyside Way |
Mason Creek - Block
11 , Lot
18
Lot Information
| Availability |
Sold
|
| Block |
11
|
| Lot Number |
18
|
Birch
| Model Name | Birch |
| Bedrooms | 3 |
| Bathrooms |
2
|
| Sq Ft | 1,620 |
| Garage | 2 |
Mason Creek - Block
11 , Lot
20
Lot Information
| Availability |
Sold
|
| Block |
11
|
| Lot Number |
20
|
Alturas
| Model Name | Alturas |
| Bedrooms | 3 |
| Bathrooms |
2
|
| Sq Ft | 1,446 |
| Garage | 2 |
Alturas
| Model Name | Alturas |
| Bedrooms | 3 |
| Bathrooms |
2
|
| Sq Ft | 1,446 |
| Garage | 2 |
| Address | 19455 Snowyside Way |
Alturas
| Model Name | Alturas |
| Bedrooms | 3 |
| Bathrooms |
2
|
| Sq Ft | 1,446 |
| Garage | 2 |
| Address | 19375 Snowyside Way |
Mason Creek - Block
11 , Lot
8
Lot Information
| Availability |
Sold
|
| Block |
11
|
| Lot Number |
8
|
Mason Creek - Block
11 , Lot
10
Lot Information
| Availability |
Sold
|
| Block |
11
|
| Lot Number |
10
|
Garnet
| Model Name | Garnet |
| Bedrooms | 4 - 6 |
| Bathrooms |
2.5 - 3
|
| Sq Ft | 2,807 |
| Garage | 2 |
Mason Creek - Block
12 , Lot
9
Lot Information
| Availability |
Sold
|
| Block |
12
|
| Lot Number |
9
|
Birch
| Model Name | Birch |
| Bedrooms | 3 |
| Bathrooms |
2
|
| Sq Ft | 1,620 |
| Garage | 2 |
Mason Creek - Block
12 , Lot
10
Lot Information
| Availability |
Sold
|
| Block |
12
|
| Lot Number |
10
|
Birch
| Model Name | Birch |
| Bedrooms | 3 |
| Bathrooms |
2
|
| Sq Ft | 1,620 |
| Garage | 2 |
Mason Creek - Block
12 , Lot
11
Lot Information
| Availability |
Sold
|
| Block |
12
|
| Lot Number |
11
|
Alturas
| Model Name | Alturas |
| Bedrooms | 3 |
| Bathrooms |
2
|
| Sq Ft | 1,446 |
| Garage | 2 |
Alturas
| Model Name | Alturas |
| Bedrooms | 3 |
| Bathrooms |
2
|
| Sq Ft | 1,446 |
| Garage | 2 |
| Address | 19455 Snowyside Way |
Alturas
| Model Name | Alturas |
| Bedrooms | 3 |
| Bathrooms |
2
|
| Sq Ft | 1,446 |
| Garage | 2 |
| Address | 19375 Snowyside Way |
Mason Creek - Block
12 , Lot
12
Lot Information
| Availability |
Sold
|
| Block |
12
|
| Lot Number |
12
|
Alturas
| Model Name | Alturas |
| Bedrooms | 3 |
| Bathrooms |
2
|
| Sq Ft | 1,446 |
| Garage | 2 |
Alturas
| Model Name | Alturas |
| Bedrooms | 3 |
| Bathrooms |
2
|
| Sq Ft | 1,446 |
| Garage | 2 |
| Address | 19455 Snowyside Way |
Alturas
| Model Name | Alturas |
| Bedrooms | 3 |
| Bathrooms |
2
|
| Sq Ft | 1,446 |
| Garage | 2 |
| Address | 19375 Snowyside Way |
Mason Creek - Block
12 , Lot
13
Lot Information
| Availability |
Sold
|
| Block |
12
|
| Lot Number |
13
|
Alturas
| Model Name | Alturas |
| Bedrooms | 3 |
| Bathrooms |
2
|
| Sq Ft | 1,446 |
| Garage | 2 |
Alturas
| Model Name | Alturas |
| Bedrooms | 3 |
| Bathrooms |
2
|
| Sq Ft | 1,446 |
| Garage | 2 |
| Address | 19455 Snowyside Way |
Alturas
| Model Name | Alturas |
| Bedrooms | 3 |
| Bathrooms |
2
|
| Sq Ft | 1,446 |
| Garage | 2 |
| Address | 19375 Snowyside Way |
Mason Creek - Block
12 , Lot
14
Lot Information
| Availability |
Sold
|
| Block |
12
|
| Lot Number |
14
|
Alturas
| Model Name | Alturas |
| Bedrooms | 3 |
| Bathrooms |
2
|
| Sq Ft | 1,446 |
| Garage | 2 |
Alturas
| Model Name | Alturas |
| Bedrooms | 3 |
| Bathrooms |
2
|
| Sq Ft | 1,446 |
| Garage | 2 |
| Address | 19455 Snowyside Way |
Alturas
| Model Name | Alturas |
| Bedrooms | 3 |
| Bathrooms |
2
|
| Sq Ft | 1,446 |
| Garage | 2 |
| Address | 19375 Snowyside Way |
Mason Creek - Block
12 , Lot
15
Lot Information
| Availability |
Sold
|
| Block |
12
|
| Lot Number |
15
|
Garnet
| Model Name | Garnet |
| Bedrooms | 4 - 6 |
| Bathrooms |
2.5 - 3
|
| Sq Ft | 2,807 |
| Garage | 2 |
Mason Creek - Block
12 , Lot
16
Lot Information
| Availability |
Sold
|
| Block |
12
|
| Lot Number |
16
|
Alturas
| Model Name | Alturas |
| Bedrooms | 3 |
| Bathrooms |
2
|
| Sq Ft | 1,446 |
| Garage | 2 |
Alturas
| Model Name | Alturas |
| Bedrooms | 3 |
| Bathrooms |
2
|
| Sq Ft | 1,446 |
| Garage | 2 |
| Address | 19455 Snowyside Way |
Alturas
| Model Name | Alturas |
| Bedrooms | 3 |
| Bathrooms |
2
|
| Sq Ft | 1,446 |
| Garage | 2 |
| Address | 19375 Snowyside Way |
Mason Creek - Block
12 , Lot
17
Lot Information
| Availability |
Sold
|
| Block |
12
|
| Lot Number |
17
|
Topaz
| Model Name | Topaz |
| Bedrooms | 4 - 5 |
| Bathrooms |
3.5
|
| Sq Ft | 3,064 |
| Garage | 3 |
Mason Creek - Block
12 , Lot
18
Lot Information
| Availability |
Available
|
| Block |
12
|
| Lot Number |
18
|
Mason Creek - Block
13 , Lot
2
Lot Information
| Availability |
Under Contract
|
| Block |
13
|
| Lot Number |
2
|
Alturas
| Model Name | Alturas |
| Bedrooms | 3 |
| Bathrooms |
2
|
| Sq Ft | 1,446 |
| Garage | 2 |
| Price | $ 369,990 |
Alturas
| Model Name | Alturas |
| Bedrooms | 3 |
| Bathrooms |
2
|
| Sq Ft | 1,446 |
| Garage | 2 |
| Price | $ 409,990 |
| Address | 19455 Snowyside Way |
Alturas
| Model Name | Alturas |
| Bedrooms | 3 |
| Bathrooms |
2
|
| Sq Ft | 1,446 |
| Garage | 2 |
| Price | $ 429,990 |
| Address | 19375 Snowyside Way |
Mason Creek - Block
13 , Lot
3
Lot Information
| Availability |
Under Contract
|
| Block |
13
|
| Lot Number |
3
|
Crestwood
| Model Name | Crestwood |
| Bedrooms | 3 - 4 |
| Bathrooms |
2
|
| Sq Ft | 2,009 |
| Garage | 2 |
| Price | $ 404,990 |
Mason Creek - Block
13 , Lot
4
Lot Information
| Availability |
Under Contract
|
| Block |
13
|
| Lot Number |
4
|
Jade
| Model Name | Jade |
| Bedrooms | 3 - 4 |
| Bathrooms |
2.5 - 3.5
|
| Sq Ft | 2,737 |
| Garage | 3 |
| Price | $ 458,990 |
Mason Creek - Block
13 , Lot
5
Lot Information
| Availability |
Under Contract
|
| Block |
13
|
| Lot Number |
5
|
Crestwood
| Model Name | Crestwood |
| Bedrooms | 3 - 4 |
| Bathrooms |
2
|
| Sq Ft | 2,009 |
| Garage | 2 |
| Price | $ 404,990 |
Mason Creek - Block
13 , Lot
6
Lot Information
| Availability |
Under Contract
|
| Block |
13
|
| Lot Number |
6
|
Alturas
| Model Name | Alturas |
| Bedrooms | 3 |
| Bathrooms |
2
|
| Sq Ft | 1,446 |
| Garage | 2 |
| Price | $ 369,990 |
Alturas
| Model Name | Alturas |
| Bedrooms | 3 |
| Bathrooms |
2
|
| Sq Ft | 1,446 |
| Garage | 2 |
| Price | $ 409,990 |
| Address | 19455 Snowyside Way |
Alturas
| Model Name | Alturas |
| Bedrooms | 3 |
| Bathrooms |
2
|
| Sq Ft | 1,446 |
| Garage | 2 |
| Price | $ 429,990 |
| Address | 19375 Snowyside Way |
Mason Creek - Block
13 , Lot
7
Lot Information
| Availability |
Under Contract
|
| Block |
13
|
| Lot Number |
7
|
Crestwood
| Model Name | Crestwood |
| Bedrooms | 3 - 4 |
| Bathrooms |
2
|
| Sq Ft | 2,009 |
| Garage | 2 |
| Price | $ 404,990 |
Mason Creek - Block
13 , Lot
8
Lot Information
| Availability |
Under Contract
|
| Block |
13
|
| Lot Number |
8
|
Topaz
| Model Name | Topaz |
| Bedrooms | 4 - 5 |
| Bathrooms |
3.5
|
| Sq Ft | 3,064 |
| Garage | 3 |
| Price | $ 478,990 |
Mason Creek - Block
13 , Lot
9
Lot Information
| Availability |
Sold
|
| Block |
13
|
| Lot Number |
9
|
Alturas
| Model Name | Alturas |
| Bedrooms | 3 |
| Bathrooms |
2
|
| Sq Ft | 1,446 |
| Garage | 2 |
Alturas
| Model Name | Alturas |
| Bedrooms | 3 |
| Bathrooms |
2
|
| Sq Ft | 1,446 |
| Garage | 2 |
| Address | 19455 Snowyside Way |
Alturas
| Model Name | Alturas |
| Bedrooms | 3 |
| Bathrooms |
2
|
| Sq Ft | 1,446 |
| Garage | 2 |
| Address | 19375 Snowyside Way |
Mason Creek - Block
13 , Lot
17
Lot Information
| Availability |
Sold
|
| Block |
13
|
| Lot Number |
17
|
Amethyst
| Model Name | Amethyst |
| Bedrooms | 3 - 5 |
| Bathrooms |
2.5 - 3
|
| Sq Ft | 2,270 |
| Garage | 2 |
Mason Creek - Block
13 , Lot
11
Lot Information
| Availability |
Sold
|
| Block |
13
|
| Lot Number |
11
|
Crestwood
| Model Name | Crestwood |
| Bedrooms | 3 - 4 |
| Bathrooms |
2
|
| Sq Ft | 2,009 |
| Garage | 2 |
Mason Creek - Block
13 , Lot
12
Lot Information
| Availability |
Sold
|
| Block |
13
|
| Lot Number |
12
|
Birch
| Model Name | Birch |
| Bedrooms | 3 |
| Bathrooms |
2
|
| Sq Ft | 1,620 |
| Garage | 2 |
Mason Creek - Block
13 , Lot
13
Lot Information
| Availability |
Sold
|
| Block |
13
|
| Lot Number |
13
|
Agate
| Model Name | Agate |
| Bedrooms | 4 - 6 |
| Bathrooms |
2.5 - 3
|
| Sq Ft | 3,435 |
| Garage | 3 |
Mason Creek - Block
13 , Lot
14
Lot Information
| Availability |
Sold
|
| Block |
13
|
| Lot Number |
14
|
Garnet
| Model Name | Garnet |
| Bedrooms | 4 - 6 |
| Bathrooms |
2.5 - 3
|
| Sq Ft | 2,807 |
| Garage | 2 |
Mason Creek - Block
13 , Lot
15
Lot Information
| Availability |
Sold
|
| Block |
13
|
| Lot Number |
15
|
Jade
| Model Name | Jade |
| Bedrooms | 3 - 4 |
| Bathrooms |
2.5 - 3.5
|
| Sq Ft | 2,737 |
| Garage | 3 |
Mason Creek - Block
13 , Lot
16
Lot Information
| Availability |
Sold
|
| Block |
13
|
| Lot Number |
16
|
Topaz
| Model Name | Topaz |
| Bedrooms | 4 - 5 |
| Bathrooms |
3.5
|
| Sq Ft | 3,064 |
| Garage | 3 |
Mason Creek - Block
13 , Lot
19
Lot Information
| Availability |
Sold
|
| Block |
13
|
| Lot Number |
19
|
Amethyst
| Model Name | Amethyst |
| Bedrooms | 3 - 5 |
| Bathrooms |
2.5 - 3
|
| Sq Ft | 2,270 |
| Garage | 2 |
Mason Creek - Block
14 , Lot
1
Lot Information
| Availability |
Sold
|
| Block |
14
|
| Lot Number |
1
|
Garnet
| Model Name | Garnet |
| Bedrooms | 4 - 6 |
| Bathrooms |
2.5 - 3
|
| Sq Ft | 2,807 |
| Garage | 2 |
Mason Creek - Block
14 , Lot
2
Lot Information
| Availability |
Available
|
| Block |
14
|
| Lot Number |
2
|
Mason Creek - Block
15 , Lot
1
Lot Information
| Availability |
Sold
|
| Block |
15
|
| Lot Number |
1
|
Alturas
| Model Name | Alturas |
| Bedrooms | 3 |
| Bathrooms |
2
|
| Sq Ft | 1,446 |
| Garage | 2 |
Alturas
| Model Name | Alturas |
| Bedrooms | 3 |
| Bathrooms |
2
|
| Sq Ft | 1,446 |
| Garage | 2 |
| Address | 19455 Snowyside Way |
Alturas
| Model Name | Alturas |
| Bedrooms | 3 |
| Bathrooms |
2
|
| Sq Ft | 1,446 |
| Garage | 2 |
| Address | 19375 Snowyside Way |
Mason Creek - Block
15 , Lot
3
Lot Information
| Availability |
Sold
|
| Block |
15
|
| Lot Number |
3
|
Birch
| Model Name | Birch |
| Bedrooms | 3 |
| Bathrooms |
2
|
| Sq Ft | 1,620 |
| Garage | 2 |
Mason Creek - Block
16 , Lot
1
Lot Information
| Availability |
Sold
|
| Block |
16
|
| Lot Number |
1
|
Birch
| Model Name | Birch |
| Bedrooms | 3 |
| Bathrooms |
2
|
| Sq Ft | 1,620 |
| Garage | 2 |
Mason Creek - Block
16 , Lot
2
Lot Information
| Availability |
Sold
|
| Block |
16
|
| Lot Number |
2
|
Topaz
| Model Name | Topaz |
| Bedrooms | 4 - 5 |
| Bathrooms |
3.5
|
| Sq Ft | 3,064 |
| Garage | 3 |
Mason Creek - Block
17 , Lot
1
Lot Information
| Availability |
Sold
|
| Block |
17
|
| Lot Number |
1
|
Alturas
| Model Name | Alturas |
| Bedrooms | 3 |
| Bathrooms |
2
|
| Sq Ft | 1,446 |
| Garage | 2 |
Alturas
| Model Name | Alturas |
| Bedrooms | 3 |
| Bathrooms |
2
|
| Sq Ft | 1,446 |
| Garage | 2 |
| Address | 19455 Snowyside Way |
Alturas
| Model Name | Alturas |
| Bedrooms | 3 |
| Bathrooms |
2
|
| Sq Ft | 1,446 |
| Garage | 2 |
| Address | 19375 Snowyside Way |
Mason Creek - Block
17 , Lot
2
Lot Information
| Availability |
Sold
|
| Block |
17
|
| Lot Number |
2
|
Brooke
| Model Name | Brooke |
| Bedrooms | 3 - 5 |
| Bathrooms |
2 - 3
|
| Sq Ft | 2,286 |
| Garage | 2 |
Mason Creek - Block
18 , Lot
2
Lot Information
| Availability |
Sold
|
| Block |
18
|
| Lot Number |
2
|
Crestwood
| Model Name | Crestwood |
| Bedrooms | 3 - 4 |
| Bathrooms |
2
|
| Sq Ft | 2,009 |
| Garage | 2 |
Mason Creek - Block
2 , Lot
21
Lot Information
| Availability |
Sold
|
| Block |
2
|
| Lot Number |
21
|
Topaz
| Model Name | Topaz |
| Bedrooms | 4 - 5 |
| Bathrooms |
3.5
|
| Sq Ft | 3,064 |
| Garage | 3 |
Mason Creek - Block
2 , Lot
22
Lot Information
| Availability |
Sold
|
| Block |
2
|
| Lot Number |
22
|
Amethyst
| Model Name | Amethyst |
| Bedrooms | 3 - 5 |
| Bathrooms |
2.5 - 3
|
| Sq Ft | 2,270 |
| Garage | 2 |
Mason Creek - Block
2 , Lot
24
Lot Information
| Availability |
Sold
|
| Block |
2
|
| Lot Number |
24
|
Topaz
| Model Name | Topaz |
| Bedrooms | 4 - 5 |
| Bathrooms |
3.5
|
| Sq Ft | 3,064 |
| Garage | 3 |
Mason Creek - Block
2 , Lot
25
Lot Information
| Availability |
Sold
|
| Block |
2
|
| Lot Number |
25
|
Amethyst
| Model Name | Amethyst |
| Bedrooms | 3 - 5 |
| Bathrooms |
2.5 - 3
|
| Sq Ft | 2,270 |
| Garage | 2 |
Mason Creek - Block
2 , Lot
26
Lot Information
| Availability |
Sold
|
| Block |
2
|
| Lot Number |
26
|
Jade
| Model Name | Jade |
| Bedrooms | 3 - 4 |
| Bathrooms |
2.5 - 3.5
|
| Sq Ft | 2,737 |
| Garage | 3 |
Mason Creek - Block
2 , Lot
27
Lot Information
| Availability |
Sold
|
| Block |
2
|
| Lot Number |
27
|
Crestwood
| Model Name | Crestwood |
| Bedrooms | 3 - 4 |
| Bathrooms |
2
|
| Sq Ft | 2,009 |
| Garage | 2 |
Mason Creek - Block
2 , Lot
28
Lot Information
| Availability |
Sold
|
| Block |
2
|
| Lot Number |
28
|
Garnet
| Model Name | Garnet |
| Bedrooms | 4 - 6 |
| Bathrooms |
2.5 - 3
|
| Sq Ft | 2,807 |
| Garage | 2 |
Mason Creek - Block
2 , Lot
23
Lot Information
| Availability |
Sold
|
| Block |
2
|
| Lot Number |
23
|
Alturas
| Model Name | Alturas |
| Bedrooms | 3 |
| Bathrooms |
2
|
| Sq Ft | 1,446 |
| Garage | 2 |
Alturas
| Model Name | Alturas |
| Bedrooms | 3 |
| Bathrooms |
2
|
| Sq Ft | 1,446 |
| Garage | 2 |
| Address | 19455 Snowyside Way |
Alturas
| Model Name | Alturas |
| Bedrooms | 3 |
| Bathrooms |
2
|
| Sq Ft | 1,446 |
| Garage | 2 |
| Address | 19375 Snowyside Way |
Mason Creek - Block
2 , Lot
14
Lot Information
| Availability |
Sold
|
| Block |
2
|
| Lot Number |
14
|
Garnet
| Model Name | Garnet |
| Bedrooms | 4 - 6 |
| Bathrooms |
2.5 - 3
|
| Sq Ft | 2,807 |
| Garage | 2 |
Mason Creek - Block
2 , Lot
15
Lot Information
| Availability |
Under Contract
|
| Block |
2
|
| Lot Number |
15
|
Spruce
| Model Name | Spruce |
| Bedrooms | 4 - 7 |
| Bathrooms |
2.5 - 4
|
| Sq Ft | 3,065 |
| Garage | 2 |
| Price | $ 468,990 |
Mason Creek - Block
2 , Lot
16
Lot Information
| Availability |
Available
|
| Block |
2
|
| Lot Number |
16
|
Mason Creek - Block
2 , Lot
17
Lot Information
| Availability |
Under Contract
|
| Block |
2
|
| Lot Number |
17
|
Birch
| Model Name | Birch |
| Bedrooms | 3 |
| Bathrooms |
2
|
| Sq Ft | 1,620 |
| Garage | 2 |
| Price | $ 379,990 |
Mason Creek - Block
2 , Lot
18
Lot Information
| Availability |
Under Contract
|
| Block |
2
|
| Lot Number |
18
|
Topaz
| Model Name | Topaz |
| Bedrooms | 4 - 5 |
| Bathrooms |
3.5
|
| Sq Ft | 3,064 |
| Garage | 3 |
| Price | $ 478,990 |
Mason Creek - Block
2 , Lot
9
Lot Information
| Availability |
Sold
|
| Block |
2
|
| Lot Number |
9
|
Birch
| Model Name | Birch |
| Bedrooms | 3 |
| Bathrooms |
2
|
| Sq Ft | 1,620 |
| Garage | 2 |
Mason Creek - Block
2 , Lot
10
Lot Information
| Availability |
Sold
|
| Block |
2
|
| Lot Number |
10
|
Crestwood
| Model Name | Crestwood |
| Bedrooms | 3 - 4 |
| Bathrooms |
2
|
| Sq Ft | 2,009 |
| Garage | 2 |
Mason Creek - Block
2 , Lot
11
Lot Information
| Availability |
Sold
|
| Block |
2
|
| Lot Number |
11
|
Topaz
| Model Name | Topaz |
| Bedrooms | 4 - 5 |
| Bathrooms |
3.5
|
| Sq Ft | 3,064 |
| Garage | 3 |
Mason Creek - Block
2 , Lot
12
Lot Information
| Availability |
Sold
|
| Block |
2
|
| Lot Number |
12
|
Garnet
| Model Name | Garnet |
| Bedrooms | 4 - 6 |
| Bathrooms |
2.5 - 3
|
| Sq Ft | 2,807 |
| Garage | 2 |
Mason Creek - Block
2 , Lot
13
Lot Information
| Availability |
Sold
|
| Block |
2
|
| Lot Number |
13
|
Topaz
| Model Name | Topaz |
| Bedrooms | 4 - 5 |
| Bathrooms |
3.5
|
| Sq Ft | 3,064 |
| Garage | 3 |
Mason Creek - Block
2 , Lot
14
Lot Information
| Availability |
Sold
|
| Block |
2
|
| Lot Number |
14
|
Agate
| Model Name | Agate |
| Bedrooms | 4 - 6 |
| Bathrooms |
2.5 - 3
|
| Sq Ft | 3,435 |
| Garage | 3 |
Mason Creek - Block
2 , Lot
15
Lot Information
| Availability |
Sold
|
| Block |
2
|
| Lot Number |
15
|
Crestwood
| Model Name | Crestwood |
| Bedrooms | 3 - 4 |
| Bathrooms |
2
|
| Sq Ft | 2,009 |
| Garage | 2 |
Mason Creek - Block
2 , Lot
16
Lot Information
| Availability |
Sold
|
| Block |
2
|
| Lot Number |
16
|
Mason Creek - Block
2 , Lot
17
Lot Information
| Availability |
Sold
|
| Block |
2
|
| Lot Number |
17
|
Brooke
| Model Name | Brooke |
| Bedrooms | 3 - 5 |
| Bathrooms |
2 - 3
|
| Sq Ft | 2,286 |
| Garage | 2 |
Mason Creek - Block
2 , Lot
2
Lot Information
| Availability |
Sold
|
| Block |
2
|
| Lot Number |
2
|
Agate
| Model Name | Agate |
| Bedrooms | 4 - 6 |
| Bathrooms |
2.5 - 3
|
| Sq Ft | 3,435 |
| Garage | 3 |
Mason Creek - Block
2 , Lot
3
Lot Information
| Availability |
Sold
|
| Block |
2
|
| Lot Number |
3
|
Spruce
| Model Name | Spruce |
| Bedrooms | 4 - 7 |
| Bathrooms |
2.5 - 4
|
| Sq Ft | 3,065 |
| Garage | 2 |
Mason Creek - Block
2 , Lot
4
Lot Information
| Availability |
Sold
|
| Block |
2
|
| Lot Number |
4
|
Topaz
| Model Name | Topaz |
| Bedrooms | 4 - 5 |
| Bathrooms |
3.5
|
| Sq Ft | 3,064 |
| Garage | 3 |
Mason Creek - Block
2 , Lot
5
Lot Information
| Availability |
Sold
|
| Block |
2
|
| Lot Number |
5
|
Jade
| Model Name | Jade |
| Bedrooms | 3 - 4 |
| Bathrooms |
2.5 - 3.5
|
| Sq Ft | 2,737 |
| Garage | 3 |
Mason Creek - Block
2 , Lot
6
Lot Information
| Availability |
Sold
|
| Block |
2
|
| Lot Number |
6
|
Alturas
| Model Name | Alturas |
| Bedrooms | 3 |
| Bathrooms |
2
|
| Sq Ft | 1,446 |
| Garage | 2 |
Alturas
| Model Name | Alturas |
| Bedrooms | 3 |
| Bathrooms |
2
|
| Sq Ft | 1,446 |
| Garage | 2 |
| Address | 19455 Snowyside Way |
Alturas
| Model Name | Alturas |
| Bedrooms | 3 |
| Bathrooms |
2
|
| Sq Ft | 1,446 |
| Garage | 2 |
| Address | 19375 Snowyside Way |
Mason Creek - Block
2 , Lot
7
Lot Information
| Availability |
Sold
|
| Block |
2
|
| Lot Number |
7
|
Amethyst
| Model Name | Amethyst |
| Bedrooms | 3 - 5 |
| Bathrooms |
2.5 - 3
|
| Sq Ft | 2,270 |
| Garage | 2 |
Mason Creek - Block
2 , Lot
8
Lot Information
| Availability |
Sold
|
| Block |
2
|
| Lot Number |
8
|
Garnet
| Model Name | Garnet |
| Bedrooms | 4 - 6 |
| Bathrooms |
2.5 - 3
|
| Sq Ft | 2,807 |
| Garage | 2 |
Mason Creek - Block
20 , Lot
1
Lot Information
| Availability |
Sold
|
| Block |
20
|
| Lot Number |
1
|
Amethyst
| Model Name | Amethyst |
| Bedrooms | 3 - 5 |
| Bathrooms |
2.5 - 3
|
| Sq Ft | 2,270 |
| Garage | 2 |
Mason Creek - Block
20 , Lot
2
Lot Information
| Availability |
Sold
|
| Block |
20
|
| Lot Number |
2
|
Alturas
| Model Name | Alturas |
| Bedrooms | 3 |
| Bathrooms |
2
|
| Sq Ft | 1,446 |
| Garage | 2 |
Alturas
| Model Name | Alturas |
| Bedrooms | 3 |
| Bathrooms |
2
|
| Sq Ft | 1,446 |
| Garage | 2 |
| Address | 19455 Snowyside Way |
Alturas
| Model Name | Alturas |
| Bedrooms | 3 |
| Bathrooms |
2
|
| Sq Ft | 1,446 |
| Garage | 2 |
| Address | 19375 Snowyside Way |
Mason Creek - Block
20 , Lot
3
Lot Information
| Availability |
Sold
|
| Block |
20
|
| Lot Number |
3
|
Alturas
| Model Name | Alturas |
| Bedrooms | 3 |
| Bathrooms |
2
|
| Sq Ft | 1,446 |
| Garage | 2 |
Alturas
| Model Name | Alturas |
| Bedrooms | 3 |
| Bathrooms |
2
|
| Sq Ft | 1,446 |
| Garage | 2 |
| Address | 19455 Snowyside Way |
Alturas
| Model Name | Alturas |
| Bedrooms | 3 |
| Bathrooms |
2
|
| Sq Ft | 1,446 |
| Garage | 2 |
| Address | 19375 Snowyside Way |
Mason Creek - Block
20 , Lot
4
Lot Information
| Availability |
Sold
|
| Block |
20
|
| Lot Number |
4
|
Alturas
| Model Name | Alturas |
| Bedrooms | 3 |
| Bathrooms |
2
|
| Sq Ft | 1,446 |
| Garage | 2 |
Alturas
| Model Name | Alturas |
| Bedrooms | 3 |
| Bathrooms |
2
|
| Sq Ft | 1,446 |
| Garage | 2 |
| Address | 19455 Snowyside Way |
Alturas
| Model Name | Alturas |
| Bedrooms | 3 |
| Bathrooms |
2
|
| Sq Ft | 1,446 |
| Garage | 2 |
| Address | 19375 Snowyside Way |
Mason Creek - Block
20 , Lot
5
Lot Information
| Availability |
Sold
|
| Block |
20
|
| Lot Number |
5
|
Brooke
| Model Name | Brooke |
| Bedrooms | 3 - 5 |
| Bathrooms |
2 - 3
|
| Sq Ft | 2,286 |
| Garage | 2 |
Mason Creek - Block
3 , Lot
2
Lot Information
| Availability |
Sold
|
| Block |
3
|
| Lot Number |
2
|
Spruce
| Model Name | Spruce |
| Bedrooms | 4 - 7 |
| Bathrooms |
2.5 - 4
|
| Sq Ft | 3,065 |
| Garage | 2 |
Mason Creek - Block
3 , Lot
3
Lot Information
| Availability |
Sold
|
| Block |
3
|
| Lot Number |
3
|
Garnet
| Model Name | Garnet |
| Bedrooms | 4 - 6 |
| Bathrooms |
2.5 - 3
|
| Sq Ft | 2,807 |
| Garage | 2 |
Mason Creek - Block
3 , Lot
4
Lot Information
| Availability |
Sold
|
| Block |
3
|
| Lot Number |
4
|
Amethyst
| Model Name | Amethyst |
| Bedrooms | 3 - 5 |
| Bathrooms |
2.5 - 3
|
| Sq Ft | 2,270 |
| Garage | 2 |
Mason Creek - Block
3 , Lot
6
Lot Information
| Availability |
Sold
|
| Block |
3
|
| Lot Number |
6
|
Topaz
| Model Name | Topaz |
| Bedrooms | 4 - 5 |
| Bathrooms |
3.5
|
| Sq Ft | 3,064 |
| Garage | 3 |
Mason Creek - Block
3 , Lot
7
Lot Information
| Availability |
Sold
|
| Block |
3
|
| Lot Number |
7
|
Topaz
| Model Name | Topaz |
| Bedrooms | 4 - 5 |
| Bathrooms |
3.5
|
| Sq Ft | 3,064 |
| Garage | 3 |
Mason Creek - Block
3 , Lot
8
Lot Information
| Availability |
Sold
|
| Block |
3
|
| Lot Number |
8
|
Crestwood
| Model Name | Crestwood |
| Bedrooms | 3 - 4 |
| Bathrooms |
2
|
| Sq Ft | 2,009 |
| Garage | 2 |
Mason Creek - Block
3 , Lot
9
Lot Information
| Availability |
Sold
|
| Block |
3
|
| Lot Number |
9
|
Spruce
| Model Name | Spruce |
| Bedrooms | 4 - 7 |
| Bathrooms |
2.5 - 4
|
| Sq Ft | 3,065 |
| Garage | 2 |
Mason Creek - Block
3 , Lot
10
Lot Information
| Availability |
Sold
|
| Block |
3
|
| Lot Number |
10
|
Mason Creek - Block
3 , Lot
11
Lot Information
| Availability |
Sold
|
| Block |
3
|
| Lot Number |
11
|
Mason Creek - Block
3 , Lot
12
Lot Information
| Availability |
Sold
|
| Block |
3
|
| Lot Number |
12
|
Garnet
| Model Name | Garnet |
| Bedrooms | 4 - 6 |
| Bathrooms |
2.5 - 3
|
| Sq Ft | 2,807 |
| Garage | 2 |
Mason Creek - Block
3 , Lot
13
Lot Information
| Availability |
Sold
|
| Block |
3
|
| Lot Number |
13
|
Crestwood
| Model Name | Crestwood |
| Bedrooms | 3 - 4 |
| Bathrooms |
2
|
| Sq Ft | 2,009 |
| Garage | 2 |
Mason Creek - Block
4 , Lot
2
Lot Information
| Availability |
Sold
|
| Block |
4
|
| Lot Number |
2
|
Birch
| Model Name | Birch |
| Bedrooms | 3 |
| Bathrooms |
2
|
| Sq Ft | 1,620 |
| Garage | 2 |
Mason Creek - Block
4 , Lot
3
Lot Information
| Availability |
Sold
|
| Block |
4
|
| Lot Number |
3
|
Alturas
| Model Name | Alturas |
| Bedrooms | 3 |
| Bathrooms |
2
|
| Sq Ft | 1,446 |
| Garage | 2 |
Alturas
| Model Name | Alturas |
| Bedrooms | 3 |
| Bathrooms |
2
|
| Sq Ft | 1,446 |
| Garage | 2 |
| Address | 19455 Snowyside Way |
Alturas
| Model Name | Alturas |
| Bedrooms | 3 |
| Bathrooms |
2
|
| Sq Ft | 1,446 |
| Garage | 2 |
| Address | 19375 Snowyside Way |
Mason Creek - Block
4 , Lot
4
Lot Information
| Availability |
Sold
|
| Block |
4
|
| Lot Number |
4
|
Crestwood
| Model Name | Crestwood |
| Bedrooms | 3 - 4 |
| Bathrooms |
2
|
| Sq Ft | 2,009 |
| Garage | 2 |
Mason Creek - Block
4 , Lot
5
Lot Information
| Availability |
Sold
|
| Block |
4
|
| Lot Number |
5
|
Brooke
| Model Name | Brooke |
| Bedrooms | 3 - 5 |
| Bathrooms |
2 - 3
|
| Sq Ft | 2,286 |
| Garage | 2 |
Mason Creek - Block
4 , Lot
6
Lot Information
| Availability |
Sold
|
| Block |
4
|
| Lot Number |
6
|
Alturas
| Model Name | Alturas |
| Bedrooms | 3 |
| Bathrooms |
2
|
| Sq Ft | 1,446 |
| Garage | 2 |
Alturas
| Model Name | Alturas |
| Bedrooms | 3 |
| Bathrooms |
2
|
| Sq Ft | 1,446 |
| Garage | 2 |
| Address | 19455 Snowyside Way |
Alturas
| Model Name | Alturas |
| Bedrooms | 3 |
| Bathrooms |
2
|
| Sq Ft | 1,446 |
| Garage | 2 |
| Address | 19375 Snowyside Way |
Mason Creek - Block
4 , Lot
8
Lot Information
| Availability |
Sold
|
| Block |
4
|
| Lot Number |
8
|
Brooke
| Model Name | Brooke |
| Bedrooms | 3 - 5 |
| Bathrooms |
2 - 3
|
| Sq Ft | 2,286 |
| Garage | 2 |
Mason Creek - Block
4 , Lot
9
Lot Information
| Availability |
Sold
|
| Block |
4
|
| Lot Number |
9
|
Spruce
| Model Name | Spruce |
| Bedrooms | 4 - 7 |
| Bathrooms |
2.5 - 4
|
| Sq Ft | 3,065 |
| Garage | 2 |
Mason Creek - Block
4 , Lot
10
Lot Information
| Availability |
Sold
|
| Block |
4
|
| Lot Number |
10
|
Spruce
| Model Name | Spruce |
| Bedrooms | 4 - 7 |
| Bathrooms |
2.5 - 4
|
| Sq Ft | 3,065 |
| Garage | 2 |
Mason Creek - Block
4 , Lot
11
Lot Information
| Availability |
Sold
|
| Block |
4
|
| Lot Number |
11
|
Brooke
| Model Name | Brooke |
| Bedrooms | 3 - 5 |
| Bathrooms |
2 - 3
|
| Sq Ft | 2,286 |
| Garage | 2 |
Mason Creek - Block
4 , Lot
12
Lot Information
| Availability |
Sold
|
| Block |
4
|
| Lot Number |
12
|
Topaz
| Model Name | Topaz |
| Bedrooms | 4 - 5 |
| Bathrooms |
3.5
|
| Sq Ft | 3,064 |
| Garage | 3 |
Mason Creek - Block
4 , Lot
13
Lot Information
| Availability |
Sold
|
| Block |
4
|
| Lot Number |
13
|
Crestwood
| Model Name | Crestwood |
| Bedrooms | 3 - 4 |
| Bathrooms |
2
|
| Sq Ft | 2,009 |
| Garage | 2 |
Mason Creek - Block
4 , Lot
14
Lot Information
| Availability |
Sold
|
| Block |
4
|
| Lot Number |
14
|
Mason Creek - Block
4 , Lot
15
Lot Information
| Availability |
Sold
|
| Block |
4
|
| Lot Number |
15
|
Birch
| Model Name | Birch |
| Bedrooms | 3 |
| Bathrooms |
2
|
| Sq Ft | 1,620 |
| Garage | 2 |
Mason Creek - Block
4 , Lot
16
Lot Information
| Availability |
Sold
|
| Block |
4
|
| Lot Number |
16
|
Topaz
| Model Name | Topaz |
| Bedrooms | 4 - 5 |
| Bathrooms |
3.5
|
| Sq Ft | 3,064 |
| Garage | 3 |
Mason Creek - Block
4 , Lot
18
Lot Information
| Availability |
Sold
|
| Block |
4
|
| Lot Number |
18
|
Topaz
| Model Name | Topaz |
| Bedrooms | 4 - 5 |
| Bathrooms |
3.5
|
| Sq Ft | 3,064 |
| Garage | 3 |
Mason Creek - Block
4 , Lot
19
Lot Information
| Availability |
Sold
|
| Block |
4
|
| Lot Number |
19
|
Birch
| Model Name | Birch |
| Bedrooms | 3 |
| Bathrooms |
2
|
| Sq Ft | 1,620 |
| Garage | 2 |
Mason Creek - Block
4 , Lot
20
Lot Information
| Availability |
Sold
|
| Block |
4
|
| Lot Number |
20
|
Birch
| Model Name | Birch |
| Bedrooms | 3 |
| Bathrooms |
2
|
| Sq Ft | 1,620 |
| Garage | 2 |
Mason Creek - Block
4 , Lot
21
Lot Information
| Availability |
Sold
|
| Block |
4
|
| Lot Number |
21
|
Topaz
| Model Name | Topaz |
| Bedrooms | 4 - 5 |
| Bathrooms |
3.5
|
| Sq Ft | 3,064 |
| Garage | 3 |
Mason Creek - Block
4 , Lot
22
Lot Information
| Availability |
Sold
|
| Block |
4
|
| Lot Number |
22
|
Birch
| Model Name | Birch |
| Bedrooms | 3 |
| Bathrooms |
2
|
| Sq Ft | 1,620 |
| Garage | 2 |
Mason Creek - Block
4 , Lot
24
Lot Information
| Availability |
Sold
|
| Block |
4
|
| Lot Number |
24
|
Birch
| Model Name | Birch |
| Bedrooms | 3 |
| Bathrooms |
2
|
| Sq Ft | 1,620 |
| Garage | 2 |
Mason Creek - Block
4 , Lot
25
Lot Information
| Availability |
Sold
|
| Block |
4
|
| Lot Number |
25
|
Birch
| Model Name | Birch |
| Bedrooms | 3 |
| Bathrooms |
2
|
| Sq Ft | 1,620 |
| Garage | 2 |
Mason Creek - Block
4 , Lot
27
Lot Information
| Availability |
Sold
|
| Block |
4
|
| Lot Number |
27
|
Alturas
| Model Name | Alturas |
| Bedrooms | 3 |
| Bathrooms |
2
|
| Sq Ft | 1,446 |
| Garage | 2 |
Alturas
| Model Name | Alturas |
| Bedrooms | 3 |
| Bathrooms |
2
|
| Sq Ft | 1,446 |
| Garage | 2 |
| Address | 19455 Snowyside Way |
Alturas
| Model Name | Alturas |
| Bedrooms | 3 |
| Bathrooms |
2
|
| Sq Ft | 1,446 |
| Garage | 2 |
| Address | 19375 Snowyside Way |
Mason Creek - Block
4 , Lot
28
Lot Information
| Availability |
Sold
|
| Block |
4
|
| Lot Number |
28
|
Mason Creek - Block
4 , Lot
34
Lot Information
| Availability |
Sold
|
| Block |
4
|
| Lot Number |
34
|
Crestwood
| Model Name | Crestwood |
| Bedrooms | 3 - 4 |
| Bathrooms |
2
|
| Sq Ft | 2,009 |
| Garage | 2 |
Mason Creek - Block
4 , Lot
35
Lot Information
| Availability |
Under Contract
|
| Block |
4
|
| Lot Number |
35
|
Crestwood
| Model Name | Crestwood |
| Bedrooms | 3 - 4 |
| Bathrooms |
2
|
| Sq Ft | 2,009 |
| Garage | 2 |
| Price | $ 404,990 |
Mason Creek - Block
4 , Lot
36
Lot Information
| Availability |
Under Contract
|
| Block |
4
|
| Lot Number |
36
|
Agate
| Model Name | Agate |
| Bedrooms | 4 - 6 |
| Bathrooms |
2.5 - 3
|
| Sq Ft | 3,435 |
| Garage | 3 |
| Price | $ 503,990 |
Mason Creek - Block
4 , Lot
37
Lot Information
| Availability |
Under Contract
|
| Block |
4
|
| Lot Number |
37
|
Topaz
| Model Name | Topaz |
| Bedrooms | 4 - 5 |
| Bathrooms |
3.5
|
| Sq Ft | 3,064 |
| Garage | 3 |
| Price | $ 478,990 |
Mason Creek - Block
4 , Lot
38
Lot Information
| Availability |
Under Contract
|
| Block |
4
|
| Lot Number |
38
|
Amethyst
| Model Name | Amethyst |
| Bedrooms | 3 - 5 |
| Bathrooms |
2.5 - 3
|
| Sq Ft | 2,270 |
| Garage | 2 |
| Price | $ 433,990 |
Mason Creek - Block
4 , Lot
39
Lot Information
| Availability |
Under Contract
|
| Block |
4
|
| Lot Number |
39
|
Alturas
| Model Name | Alturas |
| Bedrooms | 3 |
| Bathrooms |
2
|
| Sq Ft | 1,446 |
| Garage | 2 |
| Price | $ 369,990 |
Alturas
| Model Name | Alturas |
| Bedrooms | 3 |
| Bathrooms |
2
|
| Sq Ft | 1,446 |
| Garage | 2 |
| Price | $ 409,990 |
| Address | 19455 Snowyside Way |
Alturas
| Model Name | Alturas |
| Bedrooms | 3 |
| Bathrooms |
2
|
| Sq Ft | 1,446 |
| Garage | 2 |
| Price | $ 429,990 |
| Address | 19375 Snowyside Way |
Mason Creek - Block
4 , Lot
40
Lot Information
| Availability |
Sold
|
| Block |
4
|
| Lot Number |
40
|
Topaz
| Model Name | Topaz |
| Bedrooms | 4 - 5 |
| Bathrooms |
3.5
|
| Sq Ft | 3,064 |
| Garage | 3 |
Mason Creek - Block
4 , Lot
41
Lot Information
| Availability |
Available
|
| Block |
4
|
| Lot Number |
41
|
Mason Creek - Block
4 , Lot
42
Lot Information
| Availability |
Under Contract
|
| Block |
4
|
| Lot Number |
42
|
Crestwood
| Model Name | Crestwood |
| Bedrooms | 3 - 4 |
| Bathrooms |
2
|
| Sq Ft | 2,009 |
| Garage | 2 |
| Price | $ 404,990 |
Mason Creek - Block
4 , Lot
43
Lot Information
| Availability |
Under Contract
|
| Block |
4
|
| Lot Number |
43
|
Birch
| Model Name | Birch |
| Bedrooms | 3 |
| Bathrooms |
2
|
| Sq Ft | 1,620 |
| Garage | 2 |
| Price | $ 379,990 |
Mason Creek - Block
4 , Lot
44
Lot Information
| Availability |
Under Contract
|
| Block |
4
|
| Lot Number |
44
|
Birch
| Model Name | Birch |
| Bedrooms | 3 |
| Bathrooms |
2
|
| Sq Ft | 1,620 |
| Garage | 2 |
| Price | $ 379,990 |
Mason Creek - Block
4 , Lot
26
Lot Information
| Availability |
Sold
|
| Block |
4
|
| Lot Number |
26
|
Crestwood
| Model Name | Crestwood |
| Bedrooms | 3 - 4 |
| Bathrooms |
2
|
| Sq Ft | 2,009 |
| Garage | 2 |
Mason Creek - Block
4 , Lot
33
Lot Information
| Availability |
Sold
|
| Block |
4
|
| Lot Number |
33
|
Spruce
| Model Name | Spruce |
| Bedrooms | 4 - 7 |
| Bathrooms |
2.5 - 4
|
| Sq Ft | 3,065 |
| Garage | 2 |
Mason Creek - Block
5 , Lot
18
Lot Information
| Availability |
Sold
|
| Block |
5
|
| Lot Number |
18
|
Mason Creek - Block
5 , Lot
22
Lot Information
| Availability |
Sold
|
| Block |
5
|
| Lot Number |
22
|
Mason Creek - Block
5 , Lot
33
Lot Information
| Availability |
Sold
|
| Block |
5
|
| Lot Number |
33
|
Brooke
| Model Name | Brooke |
| Bedrooms | 3 - 5 |
| Bathrooms |
2 - 3
|
| Sq Ft | 2,286 |
| Garage | 2 |
Mason Creek - Block
5 , Lot
34
Lot Information
| Availability |
Sold
|
| Block |
5
|
| Lot Number |
34
|
Crestwood
| Model Name | Crestwood |
| Bedrooms | 3 - 4 |
| Bathrooms |
2
|
| Sq Ft | 2,009 |
| Garage | 2 |
Mason Creek - Block
5 , Lot
29
Lot Information
| Availability |
Sold
|
| Block |
5
|
| Lot Number |
29
|
Alturas
| Model Name | Alturas |
| Bedrooms | 3 |
| Bathrooms |
2
|
| Sq Ft | 1,446 |
| Garage | 2 |
Alturas
| Model Name | Alturas |
| Bedrooms | 3 |
| Bathrooms |
2
|
| Sq Ft | 1,446 |
| Garage | 2 |
| Address | 19455 Snowyside Way |
Alturas
| Model Name | Alturas |
| Bedrooms | 3 |
| Bathrooms |
2
|
| Sq Ft | 1,446 |
| Garage | 2 |
| Address | 19375 Snowyside Way |
Mason Creek - Block
5 , Lot
30
Lot Information
| Availability |
Sold
|
| Block |
5
|
| Lot Number |
30
|
Birch
| Model Name | Birch |
| Bedrooms | 3 |
| Bathrooms |
2
|
| Sq Ft | 1,620 |
| Garage | 2 |
Mason Creek - Block
5 , Lot
31
Lot Information
| Availability |
Sold
|
| Block |
5
|
| Lot Number |
31
|
Alturas
| Model Name | Alturas |
| Bedrooms | 3 |
| Bathrooms |
2
|
| Sq Ft | 1,446 |
| Garage | 2 |
Alturas
| Model Name | Alturas |
| Bedrooms | 3 |
| Bathrooms |
2
|
| Sq Ft | 1,446 |
| Garage | 2 |
| Address | 19455 Snowyside Way |
Alturas
| Model Name | Alturas |
| Bedrooms | 3 |
| Bathrooms |
2
|
| Sq Ft | 1,446 |
| Garage | 2 |
| Address | 19375 Snowyside Way |
Mason Creek - Block
5 , Lot
32
Lot Information
| Availability |
Sold
|
| Block |
5
|
| Lot Number |
32
|
Garnet
| Model Name | Garnet |
| Bedrooms | 4 - 6 |
| Bathrooms |
2.5 - 3
|
| Sq Ft | 2,807 |
| Garage | 2 |
Mason Creek - Block
5 , Lot
35
Lot Information
| Availability |
Sold
|
| Block |
5
|
| Lot Number |
35
|
Garnet
| Model Name | Garnet |
| Bedrooms | 4 - 6 |
| Bathrooms |
2.5 - 3
|
| Sq Ft | 2,807 |
| Garage | 2 |
Mason Creek - Block
5 , Lot
36
Lot Information
| Availability |
Sold
|
| Block |
5
|
| Lot Number |
36
|
Brooke
| Model Name | Brooke |
| Bedrooms | 3 - 5 |
| Bathrooms |
2 - 3
|
| Sq Ft | 2,286 |
| Garage | 2 |
Mason Creek - Block
5 , Lot
2
Lot Information
| Availability |
Sold
|
| Block |
5
|
| Lot Number |
2
|
Alturas
| Model Name | Alturas |
| Bedrooms | 3 |
| Bathrooms |
2
|
| Sq Ft | 1,446 |
| Garage | 2 |
Alturas
| Model Name | Alturas |
| Bedrooms | 3 |
| Bathrooms |
2
|
| Sq Ft | 1,446 |
| Garage | 2 |
| Address | 19455 Snowyside Way |
Alturas
| Model Name | Alturas |
| Bedrooms | 3 |
| Bathrooms |
2
|
| Sq Ft | 1,446 |
| Garage | 2 |
| Address | 19375 Snowyside Way |
Mason Creek - Block
5 , Lot
3
Lot Information
| Availability |
Sold
|
| Block |
5
|
| Lot Number |
3
|
Mason Creek - Block
5 , Lot
4
Lot Information
| Availability |
Sold
|
| Block |
5
|
| Lot Number |
4
|
Crestwood
| Model Name | Crestwood |
| Bedrooms | 3 - 4 |
| Bathrooms |
2
|
| Sq Ft | 2,009 |
| Garage | 2 |
Mason Creek - Block
5 , Lot
5
Lot Information
| Availability |
Sold
|
| Block |
5
|
| Lot Number |
5
|
Garnet
| Model Name | Garnet |
| Bedrooms | 4 - 6 |
| Bathrooms |
2.5 - 3
|
| Sq Ft | 2,807 |
| Garage | 2 |
Mason Creek - Block
5 , Lot
6
Lot Information
| Availability |
Sold
|
| Block |
5
|
| Lot Number |
6
|
Brooke
| Model Name | Brooke |
| Bedrooms | 3 - 5 |
| Bathrooms |
2 - 3
|
| Sq Ft | 2,286 |
| Garage | 2 |
Mason Creek - Block
5 , Lot
7
Lot Information
| Availability |
Sold
|
| Block |
5
|
| Lot Number |
7
|
Birch
| Model Name | Birch |
| Bedrooms | 3 |
| Bathrooms |
2
|
| Sq Ft | 1,620 |
| Garage | 2 |
Mason Creek - Block
5 , Lot
9
Lot Information
| Availability |
Sold
|
| Block |
5
|
| Lot Number |
9
|
Yosemite
| Model Name | Yosemite |
| Bedrooms | 4 - 7 |
| Bathrooms |
3.5 - 4
|
| Sq Ft | 3,308 |
| Garage | 2 |
Yosemite
| Model Name | Yosemite |
| Bedrooms | 4 |
| Bathrooms |
3
|
| Sq Ft | 3,259 |
| Garage | 2 |
| Address | 10768 Armuth St |
Mason Creek - Block
5 , Lot
10
Lot Information
| Availability |
Sold
|
| Block |
5
|
| Lot Number |
10
|
Mason Creek - Block
5 , Lot
11
Lot Information
| Availability |
Sold
|
| Block |
5
|
| Lot Number |
11
|
Crestwood
| Model Name | Crestwood |
| Bedrooms | 3 - 4 |
| Bathrooms |
2
|
| Sq Ft | 2,009 |
| Garage | 2 |
Mason Creek - Block
5 , Lot
12
Lot Information
| Availability |
Sold
|
| Block |
5
|
| Lot Number |
12
|
Garnet
| Model Name | Garnet |
| Bedrooms | 4 - 6 |
| Bathrooms |
2.5 - 3
|
| Sq Ft | 2,807 |
| Garage | 2 |
Mason Creek - Block
5 , Lot
13
Lot Information
| Availability |
Sold
|
| Block |
5
|
| Lot Number |
13
|
Brooke
| Model Name | Brooke |
| Bedrooms | 3 - 5 |
| Bathrooms |
2 - 3
|
| Sq Ft | 2,286 |
| Garage | 2 |
Mason Creek - Block
5 , Lot
14
Lot Information
| Availability |
Sold
|
| Block |
5
|
| Lot Number |
14
|
Crestwood
| Model Name | Crestwood |
| Bedrooms | 3 - 4 |
| Bathrooms |
2
|
| Sq Ft | 2,009 |
| Garage | 2 |
Mason Creek - Block
6 , Lot
2
Lot Information
| Availability |
Sold
|
| Block |
6
|
| Lot Number |
2
|
Mason Creek - Block
6 , Lot
3
Lot Information
| Availability |
Sold
|
| Block |
6
|
| Lot Number |
3
|
Birch
| Model Name | Birch |
| Bedrooms | 3 |
| Bathrooms |
2
|
| Sq Ft | 1,620 |
| Garage | 2 |
Mason Creek - Block
6 , Lot
4
Lot Information
| Availability |
Sold
|
| Block |
6
|
| Lot Number |
4
|
Mason Creek - Block
6 , Lot
5
Lot Information
| Availability |
Sold
|
| Block |
6
|
| Lot Number |
5
|
Amethyst
| Model Name | Amethyst |
| Bedrooms | 3 - 5 |
| Bathrooms |
2.5 - 3
|
| Sq Ft | 2,270 |
| Garage | 2 |
Mason Creek - Block
6 , Lot
6
Lot Information
| Availability |
Sold
|
| Block |
6
|
| Lot Number |
6
|
Birch
| Model Name | Birch |
| Bedrooms | 3 |
| Bathrooms |
2
|
| Sq Ft | 1,620 |
| Garage | 2 |
Mason Creek - Block
6 , Lot
7
Lot Information
| Availability |
Sold
|
| Block |
6
|
| Lot Number |
7
|
Alturas
| Model Name | Alturas |
| Bedrooms | 3 |
| Bathrooms |
2
|
| Sq Ft | 1,446 |
| Garage | 2 |
Alturas
| Model Name | Alturas |
| Bedrooms | 3 |
| Bathrooms |
2
|
| Sq Ft | 1,446 |
| Garage | 2 |
| Address | 19455 Snowyside Way |
Alturas
| Model Name | Alturas |
| Bedrooms | 3 |
| Bathrooms |
2
|
| Sq Ft | 1,446 |
| Garage | 2 |
| Address | 19375 Snowyside Way |
Mason Creek - Block
7 , Lot
1
Lot Information
| Availability |
Under Contract
|
| Block |
7
|
| Lot Number |
1
|
Garnet
| Model Name | Garnet |
| Bedrooms | 4 - 6 |
| Bathrooms |
2.5 - 3
|
| Sq Ft | 2,807 |
| Garage | 2 |
| Price | $ 442,990 |
Mason Creek - Block
7 , Lot
2
Lot Information
| Availability |
Sold
|
| Block |
7
|
| Lot Number |
2
|
Topaz
| Model Name | Topaz |
| Bedrooms | 4 - 5 |
| Bathrooms |
3.5
|
| Sq Ft | 3,064 |
| Garage | 3 |
Mason Creek - Block
7 , Lot
3
Lot Information
| Availability |
Sold
|
| Block |
7
|
| Lot Number |
3
|
Jade
| Model Name | Jade |
| Bedrooms | 3 - 4 |
| Bathrooms |
2.5 - 3.5
|
| Sq Ft | 2,737 |
| Garage | 3 |
Mason Creek - Block
9 , Lot
6
Lot Information
| Availability |
Sold
|
| Block |
9
|
| Lot Number |
6
|
Mason Creek - Block
9 , Lot
14
Lot Information
| Availability |
Sold
|
| Block |
9
|
| Lot Number |
14
|
Mason Creek - Block
9 , Lot
15
Lot Information
| Availability |
Sold
|
| Block |
9
|
| Lot Number |
15
|
Top